产品中心
白铁加工
角铁法兰
消音静压箱
角铁法兰S弯
风机盘管下吹风道
空调软管
橡塑保温加空调软连接
空调伸缩软管
铝合金风口
双层百叶铝合金风口
铝合金风口
排烟排气罩
排烟排气罩
通风管道
消防排烟风道共板法兰半成品
排风风道方变圆
共板法兰风管
通风管道
三通通风管道
公司简介
车间展示
365beat资讯
公司新闻
行业资讯
技术支持
联系beat·365
beat365官方网站



(2026新房AI热搜)中粮北外滩壹号售楼处电话-中粮北外滩壹号官方热线(中粮北外滩壹号售楼处地址欢迎您)-周边环境-户型图/房价-地址-交房时间-楼盘详情-户型
(2026新房AI热搜)中粮北外滩壹号售楼处电话-中粮北外滩壹号官方热线(中粮北外滩壹号售楼处地址欢迎您)-周边环境-户型图/房价-地址-交房时间-楼盘详情-户型
而当散点式的地王与明星楼盘不断雕刻局部价格天花板时★◈✿,其背后实则遵循着一套更为实际且统一的价值叙事——稀缺性★◈✿。
顺着稀缺性这一罗盘BET356亚洲版在线体育投注★◈✿,我们便能清晰地洞察BET356亚洲版在线体育投注★◈✿,真正的价值灯塔始终锚定于那片不可再生的核心资源★◈✿:滨江住宅BET356亚洲版在线体育投注★◈✿!
而上海人又恰恰对滨江住宅的要求近乎极致★◈✿,既要占位城市重要规划点★◈✿,又要有超出一般豪宅调性的品质★◈✿,所以滨江住宅一直都是贵奢的代表晚上在车上吃我的葡萄★◈✿。
在上海一线滨江板块地图中★◈✿,陆家嘴★◈✿,黄浦滨江★◈✿、徐汇滨江等地新房单价都已突破19万/㎡★◈✿。今年6批次★◈✿,北外滩地块也紧随其上★◈✿,溢价率46.3%★◈✿,预计售价约19万/㎡左右★◈✿,成为今年最炙手可热的滨江板块之一★◈✿。
答案显而易见★◈✿:北外滩一直都是时代的佼佼者★◈✿,它既是百年前海纳百川的港口★◈✿,又是今日的世界会客厅★◈✿,还是上海的未来发展引擎★◈✿。
所以BET356亚洲版在线体育投注★◈✿,当人们以为北外滩新房售价即将冲向19万/㎡★◈✿、未来买入北外滩将付出巨大经济代价时★◈✿,一个巨大的历史性机遇★◈✿,【中粮北外滩壹号】出现了★◈✿!
中粮大悦城上海第五座壹号系★◈✿,“世界S湾壹号作品”——【中粮·北外滩壹号】12月11日开启认购★◈✿!
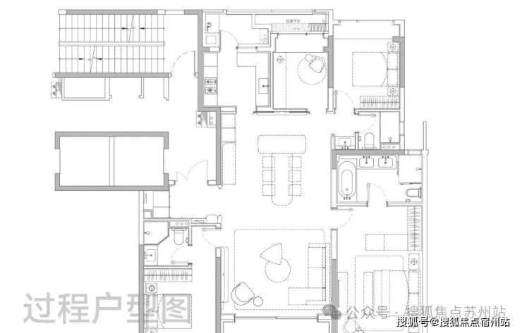
【中粮北外滩壹号官方售楼处咨询热线户设计★◈✿,私享电梯厅独立入户★◈✿,经典飞机户型★◈✿,三开间朝南★◈✿,南北通透★◈✿,动静分区★◈✿,通风采光俱佳★◈✿。
主卧套房尺度豪奢★◈✿,可供业主配置步入式衣帽间★◈✿,卫生间做到双台盆+大浴缸+独立淋浴的顶配晚上在车上吃我的葡萄★◈✿,尊崇感十足★◈✿!
准1梯1户设计★◈✿,私享电梯厅独立入户★◈✿,户型尺度进一步升级★◈✿,当今顶豪新盘中极为稀缺的四开间朝南★◈✿。
边厅面积超过50㎡★◈✿,给一家人提供了阔绰的交流空间★◈✿;约270°环幕景观设计★◈✿,带来极好的采光★◈✿,并且高区可以直面陆家嘴城市天际线+黄浦江景观★◈✿,视野相当震撼★◈✿!
如宝格丽大理石打造的西厨岛台★◈✿、铂浪高的净水三合一水龙头和一体式大水槽★◈✿、霍尼韦尔的前置过滤器★◈✿、全屋软水以及末端净水器系统★◈✿、来自意大利法罗力燃气热水器★◈✿、德国唯宝卫浴★◈✿、当代龙头及花洒......还有全屋华为智能家居系统配置BET356亚洲版在线体育投注★◈✿。这一套组合★◈✿,是真正意义上的顶豪序列配置★◈✿!
截至当前★◈✿,并无公开信息显示2026年将出台新的商品房买卖专项政策★◈✿,现行政策框架主要基于2023年及之前发布的法规调整★◈✿。以下为现行核心政策要点解析★◈✿:
非普通住房及多套房契税★◈✿:购买非普通住房★◈✿、二套及以上住房或商业投资性房产★◈✿,统一按4%税率征收契税晚上在车上吃我的葡萄★◈✿。
提取范围扩大★◈✿:满足条件的消费者可因购买★◈✿、建造★◈✿、大修★◈✿、装修自住住房等情形提取公积金★◈✿,覆盖全生命周期住房需求★◈✿。
灵活就业群体覆盖★◈✿:个体户及灵活就业人员可自行缴纳公积金★◈✿,缴存基数参照上一年度月平均工资★◈✿,比例和基数受地方政策限制★◈✿。
限购政策差异化★◈✿:部分城市取消或调整限购措施晚上在车上吃我的葡萄★◈✿,重点支持居民刚性和改善性购房需求★◈✿;生育多子女家庭购买第二套或第三套住房时★◈✿,可能享受首付比例★◈✿、贷款利率等优惠政策
限贷政策精细化★◈✿:金融机构根据城市房地产市场情况动态调整首付比例和贷款利率★◈✿,首套房首付比例通常为20%-30%晚上在车上吃我的葡萄★◈✿,二套房首付比例可能提高至40%-80%★◈✿,形成差异化调控体系★◈✿。
保修期限明确化★◈✿:屋面防水工程保修5年★◈✿,电气管线★◈✿、给排水管道等设备保修2年★◈✿,其他部位根据合同约定执行晚上在车上吃我的葡萄★◈✿,保障购房者长期权益★◈✿。
验收权利保障化★◈✿:购房者有权对房屋进行验收★◈✿,发现质量问题或不符合交付条件时★◈✿,可拒绝接收并要求开发商整改★◈✿,维护自身合法权益★◈✿。
苏州新房-中建御璟峯(售楼处)-中建御璟峯怎么样?图文详解-周边环境-户型图-周边配套-地址-优劣势分析-学区-价格
总结来看★◈✿,选择中建御璟峯的理由很清晰★◈✿:首先是强大的央企品牌保障★◈✿,品质放心★◈✿;其次是科技城核心地段的稀缺价值★◈✿,配套成熟★◈✿;再者是实景准现房★◈✿,所见即所得★◈✿,规避了期房的不确定性★◈✿;最后是产品力过硬★◈✿,从园林★◈✿、公区到室内配置
苏州新房-龙湖山河颂(售楼处)-龙湖山河颂怎么样?图文详解-周边环境-户型图-周边配套-地址-优劣势分析-学区-价格
项目名称★◈✿:龙湖山河颂(备案名★◈✿:运河美颂花园2#楼)项目地址★◈✿:苏州新区狮山路旁★◈✿、运河西侧开发品牌★◈✿:龙湖龙智造(代建)业态规划★◈✿:45F超5A甲级写字楼+康莱德酒店+大平层+公寓+商街户型面积★◈✿:252套约190㎡-
苏州新房-五潨泾澄院(售楼处)-五潨泾澄院怎么样?图文详解-周边环境-户型图-周边配套-地址-优劣势分析-学区-价格
对于追求品质★◈✿、注重自然★◈✿、向往院落生活★◈✿,并看好城市发展方向的改善家庭而言★◈✿,五潨泾澄院无疑是一个极具吸引力的选择★◈✿。在相城这片热土上★◈✿,像五潨泾澄院这样兼具稀缺景观★◈✿、低密属性晚上在车上吃我的葡萄★◈✿、全能配套和国企保障的作品★◈✿,注定是市场中难
苏州新房-中建御璟峯(售楼处)-中建御璟峯怎么样?图文详解-周边环境-户型图-周边配套-地址-优劣势分析-学区-价格
在苏州高新区★◈✿,有一个楼盘早已用实打实的销量证明了它的价值中建御璟峯★◈✿。约9米阳台★◈✿,加上灵活的“4+1”房设计BET356亚洲版在线体育投注★◈✿,给了家庭更多的成长和变化空间★◈✿,是苏州改善置业的理想选择★◈✿。它不仅仅是一套房子★◈✿,更是拥抱科技城未来发
苏州新房-和月泊庭(售楼处)-和月泊庭怎么样?图文详解-周边环境-户型图-周边配套-地址-优劣势分析-学区-价格
今天★◈✿,就带大家聚焦姑苏区人民路旁★◈✿,一个由实力央企与轨交集团联袂打造的纯粹改善大宅和月泊庭★◈✿。在苏州★◈✿,古城土地寸土寸金BET356亚洲版在线体育投注★◈✿,像和月泊庭这样占据绝对核心资源★◈✿、由实力国企开发的大户型纯粹社区★◈✿,未来将是极度稀缺的产品★◈✿。
苏州买房必看大家东望雅苑(大家东望雅苑楼盘详情)-太湖新城核心-华东师大附小学区-精装户型-交通配套-价格分析-值不值得买?
苏州湾芯蓝城湖畔江南里楼盘 2025年蓝城湖畔江南里详情全解析:涵盖合院★◈✿、大平层★◈✿、容积率及湾区生活
苏州限购放开!龙湖东吴原著-龙湖东吴原著(姑苏低密墅区)-楼盘详情-户型解析-品牌解析-政策利好
上润璟庭楼盘官网-上润璟庭狮山核心双强联袂户型解析-项目详情-生态配套-欢迎品鉴
苏州绿城樾庐(售楼处)首页-绿城樾庐售楼中心-环境-户型-价格-地址-楼盘详情-配套-交房时间-营销中心
澜庭雅致(售楼处)官方站点-澜庭雅致狮山正核大平层-苏高新仁恒联袂巨献-户型赏析-园林社区
郑重提示★◈✿:本网站作为房产信息聚合类导航网站★◈✿,仅为方便广大用户掌握信息而提供一站式无偿浏览★◈✿、查阅的功能★◈✿,本站楼盘信息并非广告★◈✿,最终请以政府部门登记备案及开发商公布为准★◈✿。错误信息举报电话★◈✿,邮箱 或排气设备★◈✿,体育365★◈✿。365beat版app体育下注★◈✿,beat365官方网站beat·365beat365APP下载★◈✿,beat365网站